при 35,5 ч.: 3778 * 0,0522 * 35,5 = 7001 н. ч.;
при 100,5 ч.: 3778 * 0,021 * 100,5 = 7973 н. ч.;
при 150 ч.: 3778 * 0,01 * 150 = 5667 н. ч.; Всего: 45272 н. ч.
1457551+ 45272 = 1502823 всего н. ч. – для обслуживания и восстановления автомобилей после аварий.
3) Рассчитаем конкурентно способность в этой сфере.
В городе находятся 5 больших станций технического обслуживания.
280 рабочих дней в году
8 часов в смене
2 рабочих на пост
Следовательно 50 постов. 100 человек, работающих на СТОА.
280 * 8 * 100 = 224000 норм часов
По результатам расчётов мы видим, что в этом городе огромная нехватка автосервисных услуг. Следовательно, о конкуренции с другими СТОА можно не задумываться.
В данной курсовой работе мы рассмотрим организацию предприятия по оказанию услуг автомойки и антикоррозийной обработки автомобилей.
Мойка автомобилей одно из развивающихся направлений автобизнеса. Окупаемость мойки напрямую зависит от вложенных средств. Каждый предприниматель может сам комплектовать свой моечный участок. “Секреты” эффективности: большой ресурс оборудования, сокращение времени мойки одного автомобиля, количество обслуживающего персонала, спектр предоставляемых услуг и т.д.
Моечные установки подразделяются на ручные мойки высокого давления (МВД) и автоматические автомобильные щеточные мойки.
Минимальная комплектация моечного поста ручная мойка высокого давления, пылесос, система рециркуляции и очистки воды. Приблизительный срок окупаемости 6-10 месяцев.
Антикоррозийная обработка необходима автомобилям ввиду негативного воздействия на их детали агрессивных сред, особенно в зимнее время года, когда дороги обрабатывают большим количеством различных химикатов. Заводской обработки автомобиля не всегда достаточно, кроме того антикоррозийное покрытие служит не более двух – трех лет.
1 – стоянка для автомобилей; 2 – участок мойки автомобилей; 3 – участок антикоррозийной обработки; 4 – служебное помещение; 5 – склад расходных материалов; 6 – раздевалка; 7 – очистные сооружения
| Требования к персоналу автомойки | ||
| Наименование участка | Кол-во рабочих | Образование |
|
Участок мойки: портальная мойка/ручная мойка | 1/2 | Среднее техническое |
|
Участок антикоррозийной обработки | 2 | Среднее техническое |
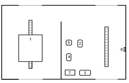
1 – автоматическая портальная мойка; 2 –аппарат высокого давления; 3 – система очистки воды; 4 – компрессор; 5 – водопылесос; 6 – обдувочный пистолет; 7 – шкаф для хранения моющих средств;
Портальная автомойка Primus;
Аппарат высокого давления фирмы KARCHER, Модель HD-650;
Прмышленный водопылесос NT 993 I (Германия);
Компрессор Schneider Unimaster 620-270 ST-A;
Обдувочный пистолет SATA;
Система очистки воды АРОС-10.
Портальная автомойка Primus
Стандартная автомойка Primus вмещает в себя автомобили высотой до 2,25 м. Ширина серийного прохода в 2,36 м позволяет легко позиционировать даже большие автомобили.


Производительность 12 -15 автомобилей в час. Движущийся портал с каркасом из недеформируемой листовой стали, покрытый антикоррозионной грунтовкой, а затем окрашенный высококачественной двухкомпонентной эмалью, в последствии прошедший термообработку при 80° C. Двигатели с частотным управлением обеспечивают плавное движение портала. Автоматическое изменение направления движения мойки на обратное контролируется ртутными концевыми выключателями, которые полностью защищены от доступа воды и не требуют технического обслуживания.
Основные отличительные особенности:
· Микропроцессорное управление и разработанное Christ программное обеспечение, предотвращающее повреждения и сбои в работе в случае нестандартных надстроек на автомобиле;
· Система подвески боковых щеток разработана так, чтобы обеспечить обеим щеткам возможность наклона в процессе мытья боковых сторон автомобиля;
· Четыре высокоэффективных вентилятора по 3 кВт для сушки верхней и боковых поверхностей автомобиля;
· Качающийся механизм верхнего сопла сушки (для оптимизации результатов сушки передней и задней зоны автомобиля за счет поворота сопла на 30 градусов по вертикальной оси с помощью приводного электродвигателя);
· Качающийся механизм для боковых сопел (для оптимизации результатов сушки на боковых зонах автомобиля с помощью регулировки бокового сопла посредством инфракрасных датчиков);
· Электронная система самодиагностики с цифровым дисплеем индикации ошибок;
· Частотное управление двигателями приводящими портал в движение обеспечивает увеличение скорости движения до 20 метров в минуту, что повышает производительность мойки.
·

